• Mode
  • Beauté
  • Cuisine
  • Recettes
  • Déco
  • Jardin
  • Amour
  • Mariage
  • Famille
  • Santé
  • Société
  • Stars
  • Loisirs
  • Horoscope
  • Hugo
  • Forum
  • Déco
  • Déco cuisine
  • Salon
  • Chambre
  • Salle de bains
  • Autres pièces
  • Tendances
  • Pratique
  • Forum déco
Journal des femmes Déco
    • S'inscrire
    • Connexion
  • Moteur de recherche
  • Déco cuisine
    • Aménagement cuisine
    • Cuisine par styles
    • Cuisine par couleurs
    • Petite cuisine
    • Cuisine ouverte
    • Cuisinistes
    • Crédence
    • Ilot central
    • Plan de travail
    • Eclairer la cuisine
    • Revêtements cuisine
    • Cuisine avec verrière
  • Salon
    • Aménagement salon
    • Salon par styles
    • Salon par couleurs
    • Meubler son salon
    • Choisir son canapé
    • Coin bibliothèque
    • Eclairer son salon
    • Coin télé
    • Déco salle à manger
  • Chambre
    • Aménagement chambre
    • Chambre par styles
    • Chambre par couleurs
    • Suite parentale
    • Chambre d'enfant
    • Chambre d'amis
    • Eclairer la chambre
    • Dressing
    • Guide literie
    • Tête de lit
  • Salle de bains
    • Aménagement salle de bains
    • Salle de bains par couleurs
    • Petite salle de bains
    • Peinture salle de bains
    • Douche à l'italienne
    • Baignoire
    • Eclairer la salle de bains
    • Buanderie
    • WC déco et pratique
  • Autres pièces
    • Déco du jardin
    • Studios, petits espaces
    • Entrée
    • Couloir
    • Bureau
    • Escalier
    • Combles, greniers
    • Garage
  • Tendances
    • Styles de déco
    • Idées et règles d'aménagement
    • Brocante et vide-greniers
    • Guide des couleurs
    • Rendez-vous et salons
    • Déco de fêtes
    • DIY déco
    • Icônes du design
    • Marques déco
    • Reportages déco
  • Pratique
    • Murs et sols
    • Travaux et bricolage
    • Chauffage et climatisation
    • Entretien et ménage
    • Eclairage
    • Portes et fenêtres
    • Electroménager
  • Forum déco

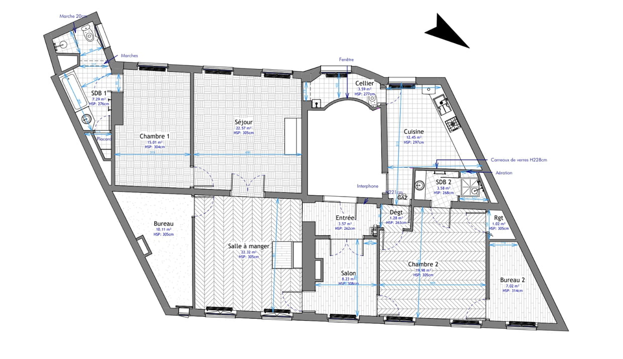
Le plan avant travaux

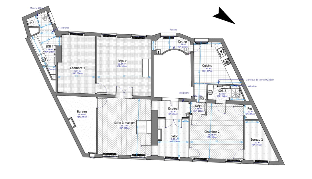
Avant-après : créer cinq chambres confortables dans un appartement qui n'en avait que deux
Le plan avant travaux

© Mon Concept Habitation
Pause
Chambre après
Chambre après
Cuisine avant
Cuisine après
Salle de bains avant
Salle de bains après
Salle de bains après
Salle de douche après
Plan existant
Plan projet
Fanny Blanc
Fanny Blanc
19 avril 2026 20:14
Partager
Newsletters
Voir un exemple
Voir un exemple
Abonnement newsletters
En ce moment
  • Ce chercheur en criminologie force ChatGPT à faire de faux aveux et ça révèle une faille insoupçonnée
  • Oubliez la marche : ce type d'exercice est le seul efficace pour des os solides d'après ce médecin
  • Peu connue, cette règle peut obliger la mairie à payer l'entretien de votre jardin
  • Avec une hausse de 30%, cette destination hors Europe attire les Français pour l'été 2026
  • Cet outil de nettoyage très utilisé propage la poussière pendant 6 heures : il dégrade la qualité de l'air
Suivez-nous
  • Qui sommes-nous ?
  • Contact
  • Publicité
  • Recrutement
  • Données personnelles
  • Paramétrer les cookies
  • Gérer Utiq
  • Mentions légales
  • Groupe Figaro
  • © 2026 CCM Benchmark