• Mode
  • Beauté
  • Cuisine
  • Recettes
  • Déco
  • Jardin
  • Amour
  • Mariage
  • Famille
  • Santé
  • Société
  • Stars
  • Loisirs
  • Horoscope
  • Hugo
  • Forum
  • Déco
  • Déco cuisine
  • Salon
  • Chambre
  • Salle de bains
  • Autres pièces
  • Tendances
  • Pratique
  • Forum déco
Journal des femmes Déco
    • S'inscrire
    • Connexion
  • Moteur de recherche
  • Déco cuisine
    • Aménagement cuisine
    • Cuisine par styles
    • Cuisine par couleurs
    • Petite cuisine
    • Cuisine ouverte
    • Cuisinistes
    • Crédence
    • Ilot central
    • Plan de travail
    • Eclairer la cuisine
    • Revêtements cuisine
    • Cuisine avec verrière
  • Salon
    • Aménagement salon
    • Salon par styles
    • Salon par couleurs
    • Meubler son salon
    • Choisir son canapé
    • Coin bibliothèque
    • Eclairer son salon
    • Coin télé
    • Déco salle à manger
  • Chambre
    • Aménagement chambre
    • Chambre par styles
    • Chambre par couleurs
    • Suite parentale
    • Chambre d'enfant
    • Chambre d'amis
    • Eclairer la chambre
    • Dressing
    • Guide literie
    • Tête de lit
  • Salle de bains
    • Aménagement salle de bains
    • Salle de bains par couleurs
    • Petite salle de bains
    • Peinture salle de bains
    • Douche à l'italienne
    • Baignoire
    • Eclairer la salle de bains
    • Buanderie
    • WC déco et pratique
  • Autres pièces
    • Déco du jardin
    • Studios, petits espaces
    • Entrée
    • Couloir
    • Bureau
    • Escalier
    • Combles, greniers
    • Garage
  • Tendances
    • Styles de déco
    • Idées et règles d'aménagement
    • Brocante et vide-greniers
    • Guide des couleurs
    • Rendez-vous et salons
    • Déco de fêtes
    • DIY déco
    • Icônes du design
    • Marques déco
    • Reportages déco
  • Pratique
    • Murs et sols
    • Travaux et bricolage
    • Chauffage et climatisation
    • Entretien et ménage
    • Eclairage
    • Portes et fenêtres
    • Electroménager
  • Forum déco

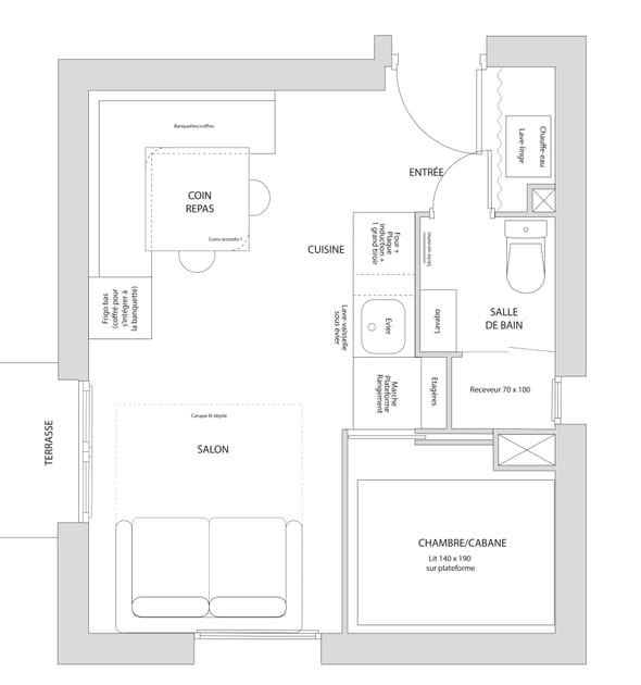
Le plan après travaux

Avant-après : un sublime 24 m² au confort inégalé pour un couple de retraités
Le plan après travaux

© Stéphanie Le Rouzic de l'Agence Mars Avril
Pause
Cuisine après
Salon avant
Salon après
Chambre avant
Chambre après
Chambre avant
Chambre après
Salle de bains avant
Salle de bains après
Plan projet
Julie Guillermet
Julie Guillermet
16 novembre 2025 20:14
Partager
Newsletters
Voir un exemple
Voir un exemple
Abonnement newsletters
En ce moment
  • Scandale du saumon de Norvège : des poissons malades vendus comme "qualité supérieure"
  • Frédéric François : "Ma fille Victoria est née quand…"
  • Pour Miss France 2026, Amandine Petit et Clémence Botino rayonnent dans des tenues qui donnent envie de s'envoler en Martinique
  • Ce gâteau léger à la poire a le même goût qu'une tarte amandine - seulement 150 calories la part
  • Les parents qui oublient ce détail fiscal dans les prochaines semaines risquent de le payer cher l'été prochain
  • Qui sommes-nous ?
  • Contact
  • Publicité
  • Recrutement
  • Données personnelles
  • Paramétrer les cookies
  • Mentions légales
  • Groupe Figaro
  • © 2025 CCM Benchmark
CCM Benchmark Group
CCM Journal Du Net Linternaute Droit-finances.net Copains d'avant Viadeo JDN Ariase Phonandroid