• Mode
  • Beauté
  • Cuisine
  • Recettes
  • Déco
  • Jardin
  • Amour
  • Mariage
  • Famille
  • Santé
  • Société
  • Stars
  • Loisirs
  • Horoscope
  • Hugo
  • Forum
  • Déco
  • Déco cuisine
  • Salon
  • Chambre
  • Salle de bains
  • Autres pièces
  • Tendances
  • Pratique
  • Forum déco
Journal des femmes Déco
    • S'inscrire
    • Connexion
  • Moteur de recherche
  • Déco cuisine
    • Aménagement cuisine
    • Cuisine par styles
    • Cuisine par couleurs
    • Petite cuisine
    • Cuisine ouverte
    • Cuisinistes
    • Crédence
    • Ilot central
    • Plan de travail
    • Eclairer la cuisine
    • Revêtements cuisine
    • Cuisine avec verrière
  • Salon
    • Aménagement salon
    • Salon par styles
    • Salon par couleurs
    • Meubler son salon
    • Choisir son canapé
    • Coin bibliothèque
    • Eclairer son salon
    • Coin télé
    • Déco salle à manger
  • Chambre
    • Aménagement chambre
    • Chambre par styles
    • Chambre par couleurs
    • Suite parentale
    • Chambre d'enfant
    • Chambre d'amis
    • Eclairer la chambre
    • Dressing
    • Guide literie
    • Tête de lit
  • Salle de bains
    • Aménagement salle de bains
    • Salle de bains par couleurs
    • Petite salle de bains
    • Peinture salle de bains
    • Douche à l'italienne
    • Baignoire
    • Eclairer la salle de bains
    • Buanderie
    • WC déco et pratique
  • Autres pièces
    • Déco du jardin
    • Studios, petits espaces
    • Entrée
    • Couloir
    • Bureau
    • Escalier
    • Combles, greniers
    • Garage
  • Tendances
    • Styles de déco
    • Idées et règles d'aménagement
    • Brocante et vide-greniers
    • Guide des couleurs
    • Rendez-vous et salons
    • Déco de fêtes
    • DIY déco
    • Icônes du design
    • Marques déco
    • Reportages déco
  • Pratique
    • Murs et sols
    • Travaux et bricolage
    • Chauffage et climatisation
    • Entretien et ménage
    • Eclairage
    • Portes et fenêtres
    • Electroménager
  • Forum déco

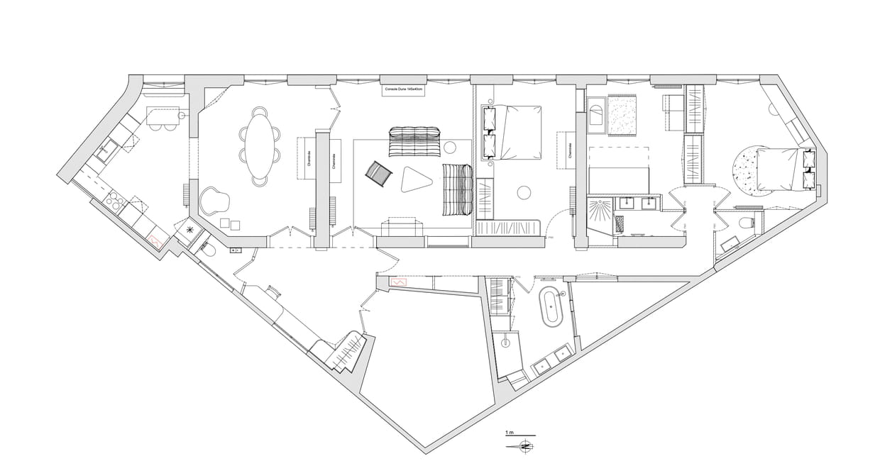
Le plan après travaux

Avant-après : un appartement figé dans le passé se réinvente avec modernité
Le plan après travaux

© August Architecture
Pause
Salle de bains après
Chambre 3 avant
Chambre 3 après
Chambre 3 après
Chambre 4 avant
Chambre 4 après
Salle d'eau avant
Salle d'eau après
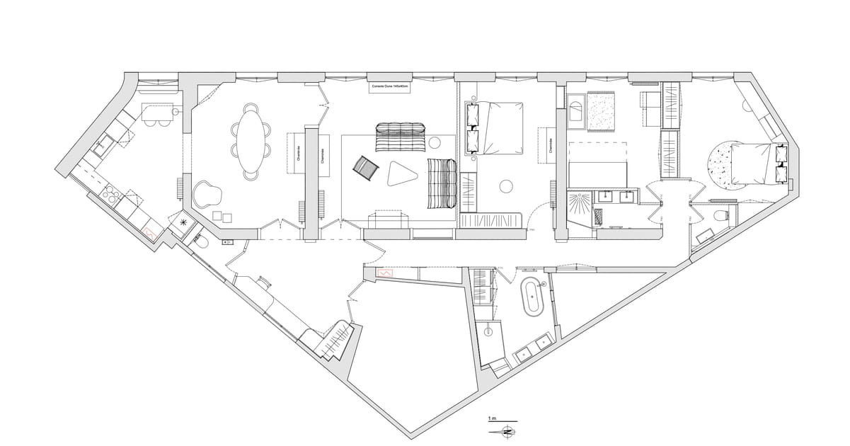
Plan existant
Plan projet
Fanny Blanc
Fanny Blanc
7 décembre 2025 20:14
Partager
Newsletters
Voir un exemple
Voir un exemple
Abonnement newsletters
En ce moment
  • C'est la ville où acheter aux portes de Paris pour gagner des mètres carrés, un trois pièces y est abordable
  • Avant les bougies parfumées, les anciens avaient une méthode bien plus naturelle pour que leur maison sente bon
  • Crémeuse et légère, cette béchamel facile à faire donne aux lasagnes une tenue parfaite
  • "J'y vis encore" : Pierre Garnier a (presque) gardé son train de vie
  • Mini robe crème et escarpins Miu Miu : Suzanne Lindon dévoile le look de fêtes idéal
  • Qui sommes-nous ?
  • Contact
  • Publicité
  • Recrutement
  • Données personnelles
  • Paramétrer les cookies
  • Mentions légales
  • Groupe Figaro
  • © 2025 CCM Benchmark
CCM Benchmark Group
CCM Journal Du Net Linternaute Droit-finances.net Copains d'avant Viadeo JDN Ariase Phonandroid