• Mode
  • Beauté
  • Cuisine
  • Recettes
  • Déco
  • Jardin
  • Amour
  • Mariage
  • Famille
  • Santé
  • Société
  • Stars
  • Loisirs
  • Horoscope
  • Hugo
  • Forum
  • Déco
  • Déco cuisine
  • Salon
  • Chambre
  • Salle de bains
  • Autres pièces
  • Tendances
  • Pratique
  • Forum déco
Journal des femmes Déco
    • S'inscrire
    • Connexion
  • Moteur de recherche
  • Déco cuisine
    • Aménagement cuisine
    • Cuisine par styles
    • Cuisine par couleurs
    • Petite cuisine
    • Cuisine ouverte
    • Cuisinistes
    • Crédence
    • Ilot central
    • Plan de travail
    • Eclairer la cuisine
    • Revêtements cuisine
    • Cuisine avec verrière
  • Salon
    • Aménagement salon
    • Salon par styles
    • Salon par couleurs
    • Meubler son salon
    • Choisir son canapé
    • Coin bibliothèque
    • Eclairer son salon
    • Coin télé
    • Déco salle à manger
  • Chambre
    • Aménagement chambre
    • Chambre par styles
    • Chambre par couleurs
    • Suite parentale
    • Chambre d'enfant
    • Chambre d'amis
    • Eclairer la chambre
    • Dressing
    • Guide literie
    • Tête de lit
  • Salle de bains
    • Aménagement salle de bains
    • Salle de bains par couleurs
    • Petite salle de bains
    • Peinture salle de bains
    • Douche à l'italienne
    • Baignoire
    • Eclairer la salle de bains
    • Buanderie
    • WC déco et pratique
  • Autres pièces
    • Déco du jardin
    • Studios, petits espaces
    • Entrée
    • Couloir
    • Bureau
    • Escalier
    • Combles, greniers
    • Garage
  • Tendances
    • Styles de déco
    • Idées et règles d'aménagement
    • Brocante et vide-greniers
    • Guide des couleurs
    • Rendez-vous et salons
    • Déco de fêtes
    • DIY déco
    • Icônes du design
    • Marques déco
    • Reportages déco
  • Pratique
    • Murs et sols
    • Travaux et bricolage
    • Chauffage et climatisation
    • Entretien et ménage
    • Eclairage
    • Portes et fenêtres
    • Electroménager
  • Forum déco

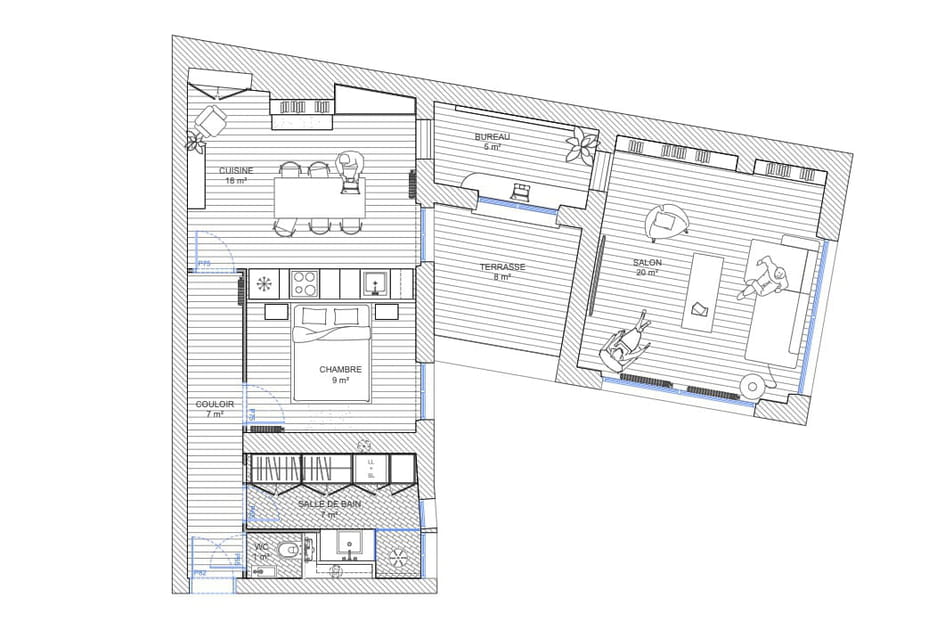
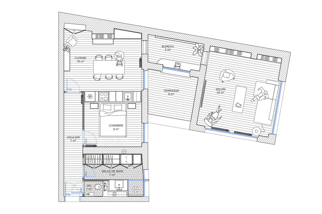
Le plan après travaux

Avant-après : cet appartement sans vis-à-vis cache une rénovation spectaculaire
Le plan après travaux

© Archik & Épicène
Pause
Salle de bains après
Chambre avant
Chambre après
Couloir après
Couloir après
Pièce avant
Pièce après
Salon après
Plan existant
Plan projet
Fanny Blanc
Fanny Blanc
2 novembre 2025 20:15
Partager
Newsletters
Voir un exemple
Voir un exemple
Abonnement newsletters
En ce moment
  • "C'est une info en or" : il ne faut surtout pas écrire ça sur l'étiquette de sa valise
  • Chouchou du cerveau : cette boisson gourmande est un véritable remontant contre le blues d'automne
  • Les météorologistes alertent : la douceur ne va pas durer, voici la date exacte des premières gelées
  • 1000 croisières en 25 ans : ce passager dévoile la somme qu'il dépense chaque année pour son style de vie
  • Lit "pomme de terre" : la tendance sommeil qui cartonne pour s'endormir plus vite
  • Qui sommes-nous ?
  • Contact
  • Publicité
  • Recrutement
  • Données personnelles
  • Paramétrer les cookies
  • Mentions légales
  • Groupe Figaro
  • © 2025 CCM Benchmark
CCM Benchmark Group
CCM Journal Du Net Linternaute Droit-finances.net Copains d'avant Viadeo JDN Ariase Phonandroid