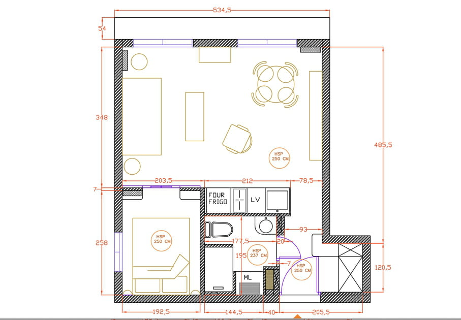
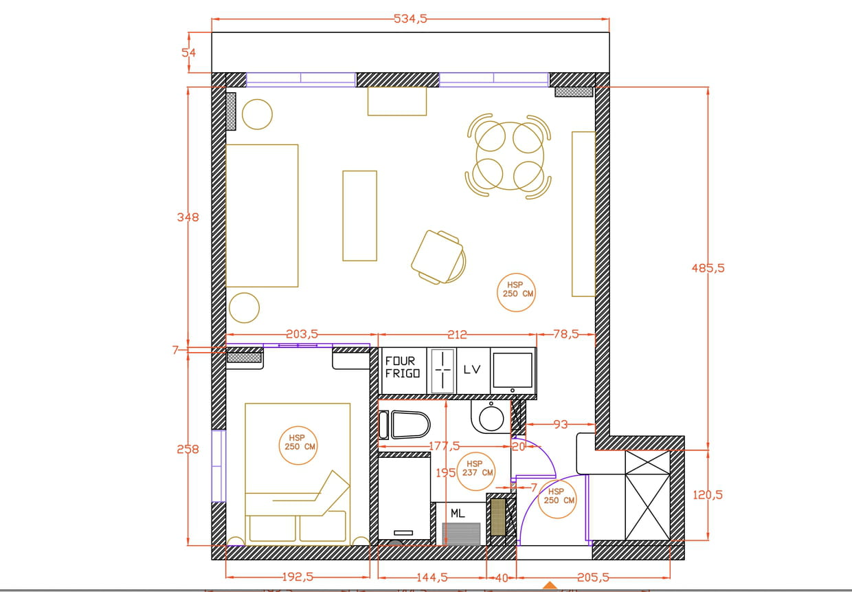
Le plan après travaux
/d4e3dcb47dac48bfb63f3fc4fcfccf23/ccmcms-jdf/40044527.png)
© Paris d'intérieur
Les informations recueillies sont destinées à CCM Benchmark Group pour vous assurer l'envoi de votre newsletter.
Elles seront également utilisées sous réserve des options souscrites, par CCM Benchmark Group à des fins de ciblage publicitaire et prospection commerciale au sein du Groupe Le Figaro, ainsi qu’avec nos partenaires commerciaux.
Le traitement de votre email à des fins de publicité et de contenus personnalisés est réalisé lors de votre inscription sur ce formulaire. Toutefois, vous pouvez vous y opposer à tout moment
Plus généralement, vous bénéficiez d'un droit d'accès et de rectification de vos données personnelles, ainsi que celui d'en demander l'effacement dans les limites prévues par la loi. Vous pouvez également à tout moment revoir vos options en matière de prospection commerciale et ciblage. En savoir plus sur notre politique de confidentialité ou notre politique Cookies.